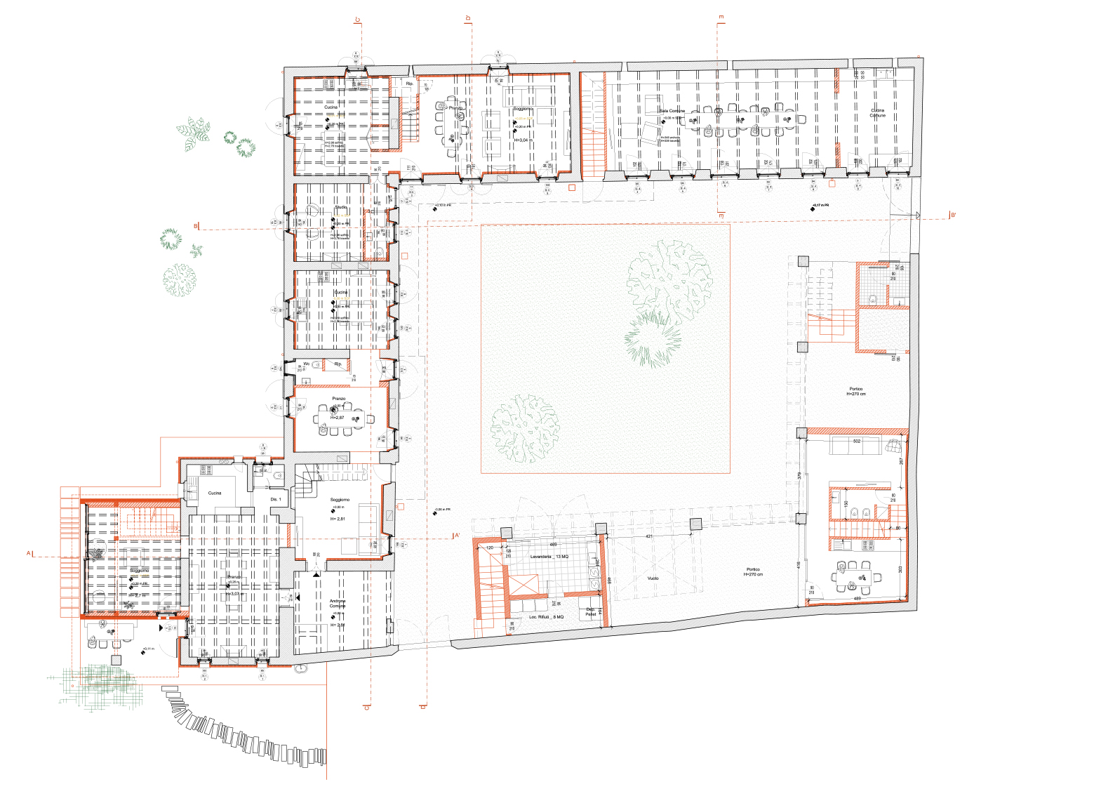
OA.023 – Cascina
Renovation on ancient rural house
Data:
Gross Built Area: 750 sqm
Year: 2016 / 2018
Lead Architects: OASI Architects – Pietro Ferrario, Francesco Enea Castellanza
Team: Jacopo Luini, Alice Tafuri, Maddalena Mainini, Laura Cavelli
Photo credits: Laura Cavelli













