OA.089 – Cascina Sacconago
Una giovane coppia con tre figlie femmina.
Una tipica cascina lombarda nella periferia di Busto Arsizio.
Esigenze semplici. Una casa con molte situazioni fertili.
Un giardino generoso rivolto al sole del sud.
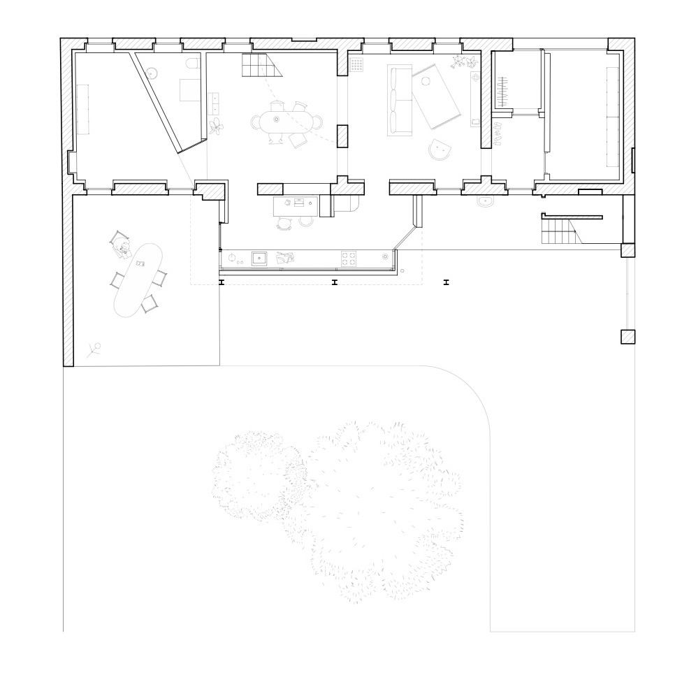
Un negozio su strada, l’abitazione contadina, il laboratorio e il fienile costituivano i quattro spazi della casa, non comunicanti tra loro. I muri in mattoni, gli intonaci policromi, le vecchie travi in legno, i pavimenti in cementine e il cotto variegato così come le cornici in cemento delle finestre, costituiscono il fascino originario da preservare e reinterpretare dell’antica abitazione rurale.
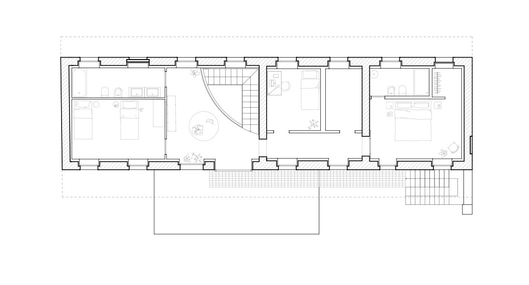
Il progetto riconquista il rapporto diretto con il giardino attraverso demolizioni puntuali. L’ampliamento della cucina rompe la rigidità degli spazi conquistando il rapporto diretto con il giardino. Le vecchie murature fanno da contenitore per le nuove condizioni abitative e lo spazio diventa strutturante. Una sequenza di stanze una concatenata all’altra. Al piano primo una stanza libera dove arriva la scala diventa spazio collettivo per la famiglia.
Le facciate, cosi come il tetto, si contraddistinguono per le loro finiture e rapporti sulla città. Su strada i muri esistenti sono stati ripuliti del vecchio intonaco a base di calce oramai compromesso mostrando la tessitura dei mattoni e travi in cemento. Verso il giardino il nuovo intonaco fa da sfondo alle antiche cornici e ai nuovi elementi. Il tetto a nord dialoga con il contesto tipicamente rurale con un manto in coppi di recupero, per opposto la falda a sud in lamiera metallica diventa il supporto tecnologico per produrre energia rinnovabile.
A young couple with three daughters.
A typical Lombard rural house on the perifery of Busto Arsizio.
Simple needs. A house with many fertile situations.
A generous garden facing the southern sun.
A shop on the street, the rural house, the laboratory and the barn made up the four spaces of the house, which did not communicate with each other. The brick walls, the polychrome plasters, the old wooden beams, the cement floors and the variegated terracotta as well as the concrete frames of the windows, constitute the original charm of the ancient rural house to be preserved and reinterpreted.
The project regains the direct relationship with the garden through punctual demolitions. The expansion of the kitchen breaks the rigidity of the spaces by gaining a direct relationship with the garden. The old walls act as a container for the new living conditions and the space becomes structuring. A sequence of rooms linked to each other. On the first floor, a free room where the staircase reaches becomes a collective space for the family.
The facades, as well as the roof, are characterized by their finishes and relationships with the city. On the road, the existing walls were cleaned of the old lime-based plaster which was now compromised, revealing the texture of the bricks and concrete beams. Towards the garden, the new plaster forms the backdrop to the ancient frames and new elements. The roof to the north interacts with the typically rural context with a covering of recycled tiles, while on the other hand the roof to the south in sheet metal becomes the technological support for producing renewable energy.
Year: 2022 – 2024
Client: Private
Team: OASI Architects – Pietro Ferrario, Francesco Enea Castellanza, Andrea Angiolini.












